公寓为什么比住宅贵相关介绍,越来越少人买复式房了?五大弊端太糟心,刚需别再入坑了! 复式公寓双层的设计类似于别墅,看上去高级上档次,也很有“小资情调”;而且实际使用...
公寓为什么比住宅便宜相关介绍,幸福里百科全书:复式房子也被称为loft,并不是完全具备两层空间,而是局部增设中间层,提供书房卧室等安静的功能空间,因此在价格上比普通...
复式房子好不好 详解复式楼的优缺点及对比 事实住过复式房子的感受,复式楼,实际为两层楼,而非一层分成两层,每层都有自己独立的标准层高,只是两层间有一个一楼直通二楼...
事实,复式楼,实际为两层楼,而非一层分成两层,每层都有自己独立的标准层高,只是两层间有一个一楼直通二楼顶的共同的互通空间(一般是客厅,客厅顶直通二楼顶,层高达五米以上...
1住过复式房子的感受、空间大 跃层式住宅给人的第一视觉体验就是居住空间足够宽敞,没有了逼仄空间的束缚,整个人心情都会舒畅不少,在这样的居住环境下,你不用再担心家...
住过跃层房子的感受如何? 1、空间大 跃层式住宅给人的第一视觉体验就是居住空间足够宽敞,没有了逼仄空间的束缚,整个人心情都会舒畅不少,在这样的居住环境下,你不用再...
您好 其实要是和父母一起住 复式的房子还是很合适的 分区明确 互不干扰 但是要注哦意的是复式的层高 如果是LOFT结构的 隔出来的复式层高会矮 住着会不舒服 所以...
复式住宅优缺点 看看过来人怎么说 关于复式住宅住过复式房子的感受,你到底了解多少?今天小编就来跟大家说说从复式住宅业主那些最值得看的经验。 复式:字面上理解就...
复式房子普遍面积大.装修成本是第一问题. 房屋清洁需要依靠钟点工,完全自己打扫相当辛苦. 没有老人的话.楼曾高一点也没问题. 复式的房子适合人群比较小.有老...

02客厅
客厅空间大面积使用了木饰面,搭配上简约的硬装线条,营造出舒适、自由的氛围。业主将将阳台并入了客厅,显得客厅的空间更加宽敞,而且采光也是一流的。

为了配合马卡龙灰色调,在软装上,沙发选用了宽大柔软的灰色布艺沙发,搭配同色系的棉麻质感地毯和柔和的氛围光,在木饰面的沙发背景墙衬托下,整个空间十分的柔和、令人放松。

马卡龙灰色调的电视背景墙上嵌入了悬挂式原木色调电视柜,底部的留空便于打扫,保证没有卫生死角。电视墙右侧走廊的墙面安装了一面装饰镜,既让空间有了艺术气息,又能反射光线,提高空间的明亮度,真是一个多功能的软装饰品。

03餐厅、厨房
这套房子最大的特点就是采用大面积原木元素来装饰,餐厅空间也是延续了客厅的风格,墙面的木饰面夹在马卡龙灰之间,再搭配上原木餐桌椅,共同营造出温润自然的居家气息。

餐厅和厨房之间开了一扇小窗,增加了家人之间的互动,使得空间更加通透,还能作为传菜口,让厨房至餐厅的动线更加便利。

厨房是一个白色的世界,白色的墙地砖和白色的橱柜,让整个空间清爽又明亮。橱柜门全部采用了隐藏式设计,更加的简洁。在另一面墙上,做了一个开放式的吧台也可当做传菜口来使用,对应的是茶室,让这几个空间的互动性更为便捷。

04茶室
茶室的设置有着浓郁的日式风格,墙面采用了抹茶绿为主色调,搭配原木和白色的收纳柜,质朴又清新。茶室设置比较别致,地面整体抬高做了榻榻米,一扇低矮的推拉日式门,让茶室显得更有私密性和安全感。

05卧室
卧室全部在二楼。业主非常喜欢简约整洁的大空间,因此在主卧室的设置上,将生活阳台并入了室内,显得主卧室更加宽敞明亮。而收纳功能则在阳台的两侧打造了通顶的原木收纳柜,满足了储物和收纳需求。

整个主卧室以马卡龙灰为主色调,搭配实木床和电视柜等家具,让空间显得非常雅静。床边的实木书柜,搭配一个俏皮的单人沙发,就开辟出惬意的休闲一角。在保证主卧室简约整洁的基础上,业主将将梳妆台、衣帽间、主卫连在一起,动线完美,打造出了一个豪华舒适的大套间。

书房的设置也是十分简约,原木元素的应用更是丰富。一整面墙都以原木做成了书柜墙,摆放一张原木大书桌,在这里办公、读书、学习,都能轻松愉悦的进行。


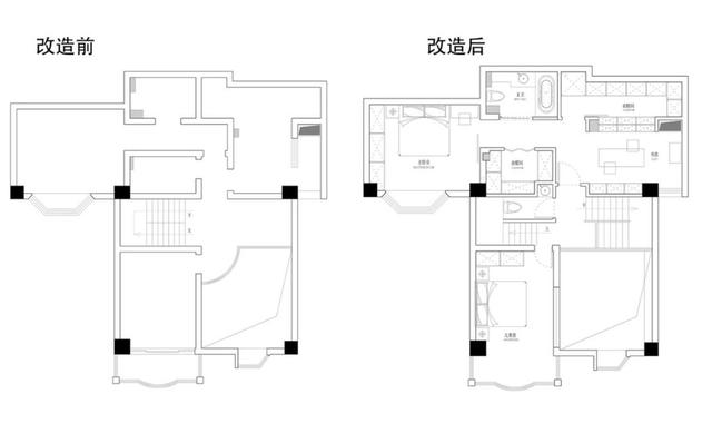
本案是一套复式楼翻新案例,建筑面积差不多在240㎡,目前只有屋主夫妇两个人居住。从一层空间改造上来看,最大的亮点有两处。一是增加了入户空间,这样可以让进门更有仪式感,并加深了动静区的结构。另一处则是更改了楼梯位置,从而让客餐厅更加地通透大气,并符合人性化的生活动线。
二层平面户型图

二层空间过于琐碎,在楼梯位置调整之后,整个二层差不多分成了三块区域。一是客厅的挑空区,二是独立的儿童房规划,三是主卧兼套房的功能设计。具体通过下面的实景照片,再来做详细的分析。
一层玄关

原户型就有一个入户空间,不过初次在装修设计时,并没有保留。因此,二次改造时,将原入户空间还原,不仅让空间有了一个明显的动静分区了,也让人有了一种入户仪式感。
鞋柜的设计也是空间中的一大亮点,虽说三年前还没有普及一门到顶的柜体结构,但将整体以等距离的方式,设计成多个小隔层,既实现了分类收纳功能,也有了一种错落的美感。当然,当空间以原木风为基调后,也为空间奠定了温润、雅致的基调。
餐厅

原餐厅和客厅为大横厅结构,不过为了实现人性化的生活动线,将过厅旁边的杂物间拆掉,以及给楼梯换个位置后,立马就打造出了一块宽敞的餐厅区。而像这种设计手法,既保留了客厅大横厅的结构,又让空间实现了纵厅结构,看起来既通透又大气。

餐厅不做过多的装饰,直接以留白的设计手法,将餐桌居中而设,既营造出了清爽、干净的空间氛围,又实现了洄游动线。不得不说,这种留白设计真的很棒,即便是当下,也有很多朋友在装修时会这样处理。

客厅

客厅看向餐厅视角,当楼梯位置改到客厅右侧后,立马让客餐厅凸显出了工整性。当然,为了保证空间的统一,客厅同样是以留白设计为主的。虽说看起来比较简单,但通过原木元素的穿插,却巧妙地点缀出了一抹温暖,且十分的耐看。

考虑到屋主夫妇有大量阅读的习惯,在沙发背面设计一整面墙的书柜,既让空间有了大气高级感,又尽显书香气息。同时,空间以挑空结构来设计,虽说让楼上少了一个房间,但在家里只有两个人居住的情况下,却也算是合理利用了空间。况且,挑空结构所带来的优势,不仅仅是大气,还让空间实现了全通透。
厨房

厨房面积其实并不大,但好在结构够方正,所以采用U型的结构来设计橱柜,既不会感到拥挤,又带来了大量的收纳操作空间。尤其是侧面的高柜设计,更是保证了空间的利落与整洁,非常实用。
次卧室

楼下的次卧室,基本上是替父母预留的房间。明亮的采光、极简式的壁灯、以及无拉手门板,既呼应了极简与原木,又营造出了雅致、轻松的居住氛围。
二层主卧室

相较于其它房间的色调,主卧室则在以白色调为主的前提下,又融入了一点奶油色,从而让空间在干净、简约的气质中,又能尽显舒适、轻柔的质感,使屋主夫妇可以更好地睡眠。虽说整个空间是以套间功能来设计的,但在空间与空间之间,也还是做了隔断,以做到互不打扰的作用。
书房

打破传统布局,选择围合式来布局书房,即便是放到现在,也没有完全普及。当然,这样的设计方式,也让书房延伸出了其它功能。比如阅读、亲子、接待等等。
不过整个书房最大的亮点,并不仅仅是布局,墙面的彩色铅笔装饰,也为空间赋予了一抹活跃的气息,且足够冷静不张扬。
卫生间

卫生间设计比较常见,浴室柜悬挂安装,既凸显出了轻盈,又方便了生活卫生打理;而底部的脏衣篮配置,则解决了基本的日常生活需求。
楼梯细节展示



小型复式房的面积一般较小,平层约为60平方米,最大高度5米左右,面积大部分在上层。复式房装修应该怎样做才能更好的利用好整个户型的有事呢?需要注意所有的装饰在于精...
复式楼装修样板间" />/www.to8to.com/yezhu/z137820.html"target="_blank">复式楼装修样板间"border="0"hspace="0"vspace=...











